 
 
Plan de maison “Esquisse #101”
Une oasis moderne
Le plan de maison “Esquisse #101” d’Enov construction s’impose par son design à la fois moderne et chaleureux. Cette maison de plain-pied, avec son toit en tuiles et ses larges baies vitrées, incarne l’équilibre parfait entre esthétique contemporaine et confort de vie. Parfaitement adaptée à différents environnements, elle offre un cadre de vie idéal, que ce soit en bordure de forêt ou en bordure de mer.
 
  
 Un espace de vie lumineux, ouvert sur l’extérieur…
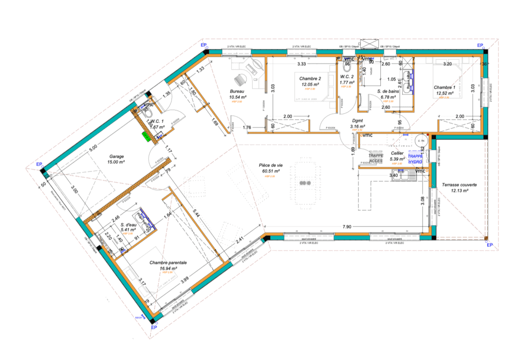
Avec une surface de 130 m², Le plan de maison “Esquisse #101” met l’accent sur l’ouverture et la luminosité. Le séjour, pièce maîtresse de la maison, s’étend sur 60 m² et s’ouvre sur une vaste terrasse en bois, propice aux moments de détente en plein air. La cuisine, entièrement ouverte, a été pensée pour s’intégrer harmonieusement au séjour, favorisant une convivialité naturelle lors des repas en famille ou entre amis. La connexion fluide entre l’intérieur et l’extérieur invite à profiter pleinement de chaque instant, sous le soleil comme à l’ombre de la pergola attenante.
Confort et intimité au coeur de la nature
Le plan de maison “Esquisse #101” se distingue par une conception réfléchie qui préserve à la fois l’intimité et le confort des occupants. La suite parentale, située à une extrémité de la maison, dispose d’un dressing spacieux et d’une salle d’eau privative, assurant un espace de repos personnel. De l’autre côté du séjour, deux chambres supplémentaires se partagent une salle de bains moderne, offrant un espace de vie pratique et fonctionnel pour toute la famille.
Chaque détail de cette maison a été pensé pour offrir un cadre de vie exceptionnel, en harmonie avec la nature environnante. L’alliance de matériaux nobles et de technologies modernes fait du plan de maison “Esquisse #101” un véritable havre de paix, où chaque espace est optimisé pour un confort maximal.

 
  
 